Veřejná zakázka: Dodávka a instalace technologie kogenerační jednotky

Informace o veřejné zakázce

fáze zadávacího řízení Zadáno (v archivu)
Zakázka byla zadána.
DBID: 90
Systémové číslo: P21V00000035
Dle zákona: č. 134/2016 Sb.
Evidenční číslo ve VVZ: Z2021-048139
Datum zahájení: 21.12.2021
Nabídku podat do: 27.01.2022 10:00

Název, druh veřejné zakázky a popis předmětu

  • Název: Dodávka a instalace technologie kogenerační jednotky
  • Druh veřejné zakázky: Dodávky

Stručný popis předmětu:
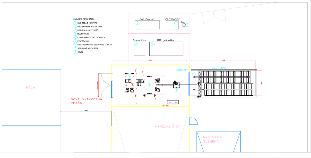
Předmětem veřejné zakázky je provedení díla spočívajícího v dodávce a instalaci energobloku pro vysoce účinnou kombinovanou výrobu elektřiny a tepla z biomasy (dále jen „dílo“).

Součástí díla jsou dále veškeré práce, dodávky, činnosti a úkony nutné k řádnému a včasnému provedení díla tak, jak je popsáno v těchto zadávacích podmínkách a jejich přílohách. Přesná specifikace díla a technické podmínky jsou uvedeny v technickém zadání, které tvoří přílohu č. 3 zadávacích podmínek.

Druh zadávacího řízení, předpokládaná hodnota

  • Druh řízení: otevřené řízení
  • Režim veřejné zakázky: nadlimitní
  • Předpokládaná hodnota: 32 000 000 Kč bez DPH

Místo plnění

  • Louny

Zadavatel

  • Úřední název: JACER - CZ, a.s.
  • IČO: 25410105
  • Poštovní adresa:
    náměstí Prokopa Velikého 466/12b
    40001 Ústí nad Labem
  • Id profilu zadavatele ve VVZ: Z2020-001750

Adresa kontaktního místa

Nabídky, resp. žádosti o účast podávat na:
prostřednictvím elektronického nástroje E-ZAK (https://zakazky.navigaassistance.cz)

Položky předmětu (CPV)

Zadávací dokumentace

Vysvětlení, doplnění, změny zadávací dokumentace

Ostatní zprávy k zakázce

Hodnocení nabídek

Veřejné dokumenty

Formuláře

URL odkazy

Plnění smlouvy na základě veřejné zakázky