Zadávací dokumentace

Zadávací řízení: Dodávka a instalace kogenerační jednotky

Informace o dokumentu

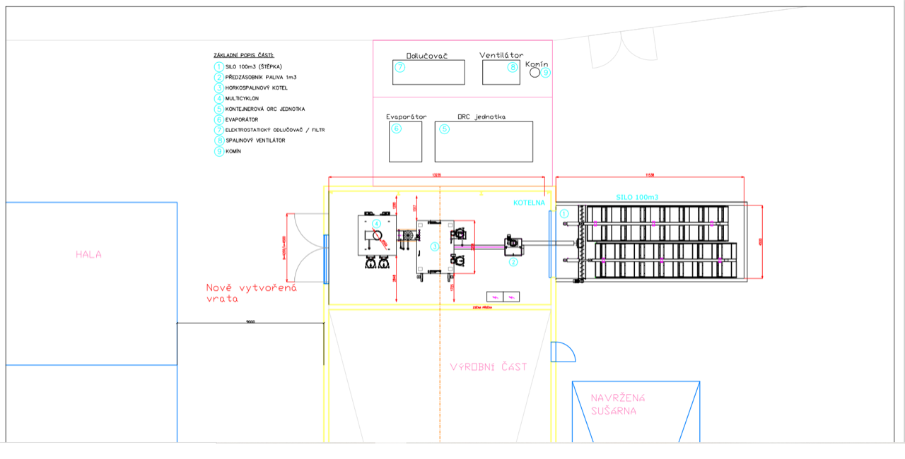
Název: Příloha č. 4
Popis:
Uveřejnění dokumentu na Profilu: 16.04.2021 22:02:39

Aktuální verze souboru

Jméno souboru: Obrázek PNG Příloha č. 4 - Situační plánek.png
Velikost: 109,85 KiB
Aktuální verze souboru: 14.04.2021 19:35:44
Otisk MD5: 8fcba185b605b744ee9e0cbf863b84dd
Otisk SHA256: 5a1950112d8e944d2bd64c15389f18a43b83aa648e9ee936d80c5f0483583b9a

Historie souboru

Datum Název Popis Typ dokumentu Jméno souboru Velikost
V 14.04.2021 19:35:44 Příloha č. 4 zadávací dokumentace - Příloha č. 4 - Situační plánek.png 109,85 KiB